Bauten/Projekte
Werkliste
Texte
Presse
Büro
Nr.:
1268
Name:
Hotel Heiden
Ort:
Heiden
Art/Jahr:
Wettbewerb, 2012
Bauherr:
Gemeinde Heiden / Hotel Heiden AG
Architekt:
Thomas Schregenberger GmbH
Partner:
Schmid Landschaftsarchitektur GmbH
Bearbeitung:
Thomas Schregenberger, Andrzej Egli, Moritz Gisler, Mathias Gassmann, Nicolas Luna
Spezialisten:
Schnetzer Puskas Ingenieure AG
Bausumme:
17 Mio. CHF
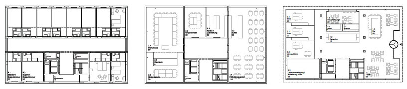
Projektbeschrieb
Bauten/Projekte
Werkliste
Texte
Presse
Büro