Bauten/Projekte
Werkliste
Texte
Presse
Büro
Nr.:
0421
Name:
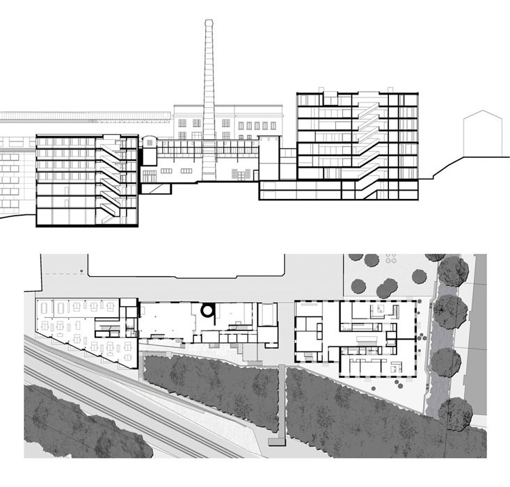
Hürlimann Areal Malzturm
Ort:
Zürich
Art/Jahr:
Studienauftrag 2004, 1. Preis / Ausführung 2006-2008
Bauherr:
PSP Properties AG
Architekt:
Thomas Schregenberger GmbH
Partner:
Büro für Bauökonomie AG / Karl Steiner AG
Bearbeitung:
Thomas Schregenberger, Andrzej Egli, Stefan Schüpbach, Dominic Schmid
Spezialisten:
Landschaftsarchitektur: Berchtold. Lenzin
Bauingenieur: Aerni + Aerni
HLKS-Ingenieur: Robert Aerni Ingenieur AG
Elekroingenieur: Hefti Hess Martignoni Elektro Engineering AG
Bauphysik: BAKUS GmbH
(c) Fotos:
Roger Frei
Bausumme:
18 Mio. CHF
Auszeichnung:
Auszeichnung für gute Bauten der Stadt Zürich 2006-2010, Anerkennung
Projektbeschrieb
Presse
Galerie schliessen
Bauten/Projekte
Werkliste
Texte
Presse
Büro